Small house for student. (40 sq mtr.) Main aim of design was to mimic historical middle XX century Kaunas' city architecture. The site is loacated in the middle of soviet time apartment building's yard. Main problem was privacy. Which was solved by creating thin vertical windows.
1st year - 1 semester
2nd year - 3 semester
Big family house with a studio for a painter. House is located in beutiful area in Kaunas, near Kaunas lake. Main design concept form is a pushed-out relief imitation. The main facade which directly faces the water is created to look like a painting. From filosofical view you can say that painter lives inside its own painting.
The slope of the plot is use in a advantages to make that the main "picture"'s frame seems to be floating above the ground. Building's sloped roof is also covered with grass which simulates pushed out relief. Inside you can find garage, 5 bedrooms, 5 bathrooms, 1 huge living room, painting studio, gallery with views to the lake and meeting room with clients.














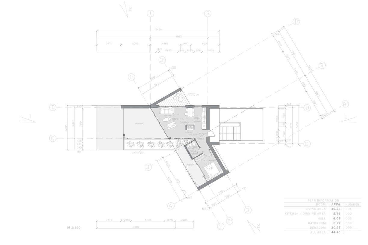
Small family house for summer stay (45 sq. mtr). Concepts comes with words "flow". Flowing and at the same time flowting house. Two simple regtangular forms joined in not so simple way. Despite that "forms follows function". One of them are parpandicular to the site boundary, another follows small relief of the plot and also faces directly to the south (allows to install very efficient solar panels), also completely blocks views from street and creates privacy for inside garden. These forms also automaticly creates 3 wonderful teraces. One for morning coffee, one for family gatherings and one for private time with yourself.
















Kinderganden in forgotten suburb in Kaunas. Main design idea comes from lego. Building form is cretaed from different huge lego block strcutures. They are intensionally placed in chaotic way in order to symbolise that the building was build by children themselves while they were playing with lego pieces.
Situation was very difficult. Site was 1 ha big, but over 70 procent of it was covered by city's drainage systems, which has huge protected area, where you cannot build any buildings. I was left with 900 square meters avaivable land. In order to fit in this small plot I had to use consoles. To add up, lithuanian building code do not allow more than 2 story kindergardens, in order to win more useful space I used antresoles which in our building code do not count as a floor/story.
Main facades are made out of colorful wood panels. Roof's windows are amde out of one specific lego piece, which used to create sloped roofs.
Site's left plot was used very racionaly and functionaly. First of all, the site has main circular movement system, besed on train-station principals - small children train, with lots of stops and driving schedulle. Further more functional zones are separated to active, relaxation and education. Whole site is surrounded by beautiful colorful trees. Being inside the plot seems like being in a wonderland, where you can not only learn but play and enjoy your time with friends!












1st year - 2 semester
2nd year - 4 semester
3rd year - 5 semester








Site located in one of the most representitive places in Kaunas. "Piliamiestis" area. This district is quite often talked about. Sadly in a bad way. Huge hectares of land just near meet between two major rivers in Lithuania - Nemunas and Neris is designed to be just another modern apartment block with buildings with no architectural taste. Second big mistake while designing this area of the city was absolute ignorance of Kaunas old city, located just in opposite side of the river.
We were told to come up with some kind of idea for the building complex in the last plot of this district. The last hope for this representative area of the city. I designed huge modern polifunctional building, which has 4 star hotel complex with at least 100 rooms, SPA, gym, beauty saloon and lots of chill areas and tarraces. There is also 3 star, 3 stories restaurant with terraces, which has views to old city. To add up there is also huge conference complex with main room which can hold up to 300 people and later transformed into two halls for 150 each. Also halls chairs can be removed and room can be used as dance floor or backstage. There is also second floor with small meeting rooms from 10 to 50 people. Finally building also has huge art of cooking academy complex, which has 20 classes, one huge amphiteathre which houses up to 200 people and its own roof garden for laboratory experiments!
Main aim while deciding on the buildings form was the natural light from the south. Buildings floors slowly decent towards the river in this way we not only get more natural light inside the building but also create triangle shape and sloped roof which perfectly contiplies with Kaunas old city's architecture.
To ensure its modern looks all the facades are made out of dark metal and mirror glass. To add up huge rectangular shapes are added onto facades to furher more create triangle shape illusion.
Mirrored glass plays a huge role not only in functionality of the building but also philosofical part. Mirrored glass helps inside of the building not to heat up in hot summer days. It also perfectly reflects Kaunas old city. It's dream come true not in literal way. Cause every citizen of Kaunas wanted that district of Piliamiestis would look like exactly as Old part of Kaunas. But after huge invasion of apartment buildings with no taste in architecture everyone gave up. This building is like broken mirror of citizen dreams, they are already long gone and mirror is shattered but last pieces of that "dream reflection" still tries they best to reflect old dreams of the city's inhabibats.











